アパートメンツ東京トップ > 東京の高級賃貸を探す > 世田谷区高級賃貸一覧 > 代沢5丁目ハウス












































賃料
1,000,000円
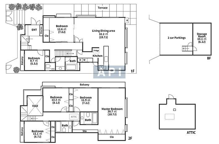
間取り
5 bedroom + デン
面積
274.1m2 (82.9坪)
契約形態
定期借家
契約期間:3年




































住所 |
東京都世田谷区代沢5-16-16 |
|---|---|
最寄駅 |
小田急線下北沢駅 徒歩8分 |
賃料 |
1,000,000円 |
管理費 |
無 |
|---|---|---|---|
礼金 |
無 |
敷金 |
4ヶ月 |
契約形態/期間 |
定期借家 / 3年 |
償却 |
|
再契約 |
相談 |
再契約料 |
1 |
鍵交換費用 |
別途かかります。 |
火災保険 |
別途かかります。 |
その他初期費用 |
別途かかります。 |
その他月額費用 |
別途かかります。 |
その他費用 |
退去時のクリーニング代:借主の負担となります。詳細はご確認下さい。 |
||
専有面積 |
274.1m2 |
間取り |
5 bedroom + デン |
バルコニー関連 |
|
||
ペット |
相談 |
||
部屋設備 |
エアコン,フローリング,洗濯機,乾燥機,食洗機,システムキッチン,オーブン,ガス,冷蔵庫,給湯,追焚機能,浴室乾燥機,温水洗浄便座,バルコニー, |
||
入居可能日 |
2026年07月中旬 |
||
情報提供日 |
2026年4月8日 (次回更新予定日:2026年4月29日) |
||
構造/総戸数 |
鉄筋コンクリート造 地上2階地下1階建て |
||
|---|---|---|---|
竣工年月 |
1991年03月 |
||
駐車場 |
賃料込 |
||
駐輪場 |
賃料込 |
||
バイク置き場 |
賃料込 |
||
建物設備・施設 |
|
||
※間取図・方位・写真・内装仕様など、この案内書と現況が異なる場合は現況を優先させていただきます。
※定期借家契約の場合の再契約についてはお問い合わせ下さい。尚、再契約が可能な場合は、別途再契約料等がかかります。
※掲載している物件が万が一成約の際はご了承ください。
※BS、CS、CATV等の各種放送の視聴の可否、視聴方法、料金形態、並びにインターネットの接続環境、料金形態は、物件別に異なりますので、各サービスの提供業者に直接ご確認下さるようお願いいたします。
※駐車場の空き状況についてはお問い合わせください。
※設備、施設は別途契約や利用料金がかかるものもございますのでご確認をお願いいたします。
※別途住宅総合保険にご加入いただきます。
※契約成立の場合、弊社に対して仲介手数料として賃料の1カ月分(消費税別)相当額のお支払いの承諾をお願いいたします。
※住宅に関する賃料・管理費は非課税です。
